Villa singola in vendita

Parma, Str. Bassa Nuova - Malandriano
€ 880.000
7 locali 7 locali
345 Mq 345 Mq
3 bagni 3 bagni

Villa singola in vendita

Parma, Str. Bassa Nuova - Malandriano

Descrizione annuncio

Nella prima periferia Sud affascinante Villa Liberty circondata dal suo parco privato.

Entrando dal cancello in ferro battuto sorge la Villa centrale rispetto al suo Parco.

La facciata presenta gli stilemi tipici dell’epoca Liberty, con le sue cornici bianche ad ogni finestra, le colonne del balcone della camera padronale e le due porte d’ingresso con la doppia vetrata.

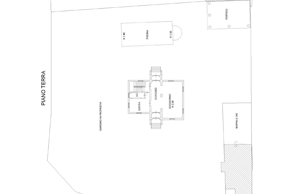
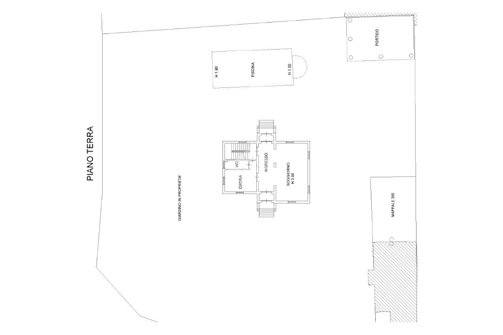
Il vialetto di accesso in pietra conduce al grande portico, dove è possibile mettere al riparo le proprie auto e all’area esterna più riparata della casa, dove è stata realizzata la piscina con acqua salata e dove vi è un comodo bersò sopra il lastrico per trascorrere in relax il proprio tempo libero.

La casa ha due accessi principali che conducono entrambi all’ampio salone completo di camino, alla cucina e a un bagno di servizio al piano terra.

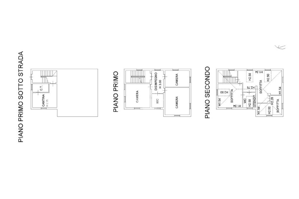
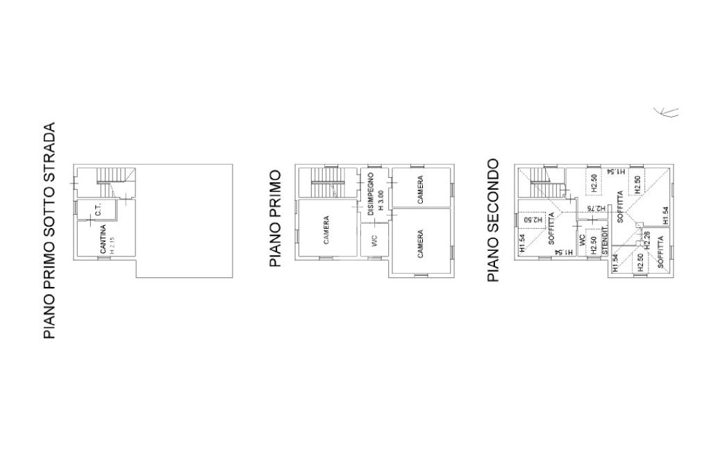
Salendo al primo piano vi sono due camere matrimoniali, una camera doppia e un bagno.

Nel piano mansardato invece troviamo un comodo spazio soggiorno/cucina, due camere e un bagno.

La Villa è completa di cantina al piano seminterrato, pozzo per l’irrigazione e sistema di irrigazione automatica e ampi spazi esterni per il parcheggio delle auto.

L'intero piano terra si fonde con armonia con gli spazi esterni, creando un equilibrio perfetto tra natura e comfort.

Ulteriori foto interne sono disponibili in Agenzia.

Per maggiori informazioni e prenotare una visita contattare Giulia 0521.481514 / 380.6315089

Mostra tutto

Nelle vicinanze

Trasporto pubblico Trasporto pubblico
Trasporto pubblico
1,8 Km
Botteghino
Botteghino
1,8 Km
Scuole Scuole
Scuola primaria Bozzani
2,5 Km
Ospedali Ospedali
Ospedale Maria Luigia
2,5 Km
Supermercati Supermercati
D'italy
690 m
Negozi Negozi
Mattia Store
700 m
Negozi
740 m
Gianni il fornaio
760 m
Bar Bar
Altro
790 m
Ristoranti Ristoranti
ca'pina
1,1 Km
Il Capriccio Di Partenope
1,2 Km
Trattoria da Romeo
1,7 Km
Antica Osteria di Marano
1,8 Km
Pizzeria Tramonti
1,9 Km
Mostra tutto

Caratteristiche

Rif.:
61107896
Piano:
Basso di 4
Totale piani:
4
Box:
2
Posti auto:
2
Balconi:
1
Mostra tutto
Prezzo Prezzo
€ 880.000
Rata mutuo Rata mutuo
€ 4.056 / mese
Spese annue Spese annue
€ 0
Proponi il tuo prezzoProponi il tuo prezzo

Classe Energetica

F
F
F
F
F
F
F
F
F
EP globale non rinnovabile:
236.00 kW h/m² anno
EP globale rinnovabile:
236.00 kW h/m² anno
EP invernale del fabbricato:
EP estiva del fabbricato:
Anno di costruzione:
1900
Riscaldamento:
Autonomo
Tipo impianto:
A radiatori
Tipo alimentazione:
Metano

Ti interessa visionare l'immobile?

Fissa un appuntamento  Fissa un appuntamento

Richiedi informazioni

* Questi campi sono obbligatori

Calcola il tuo mutuo

Semplice e senza impegno
Anticipo

( % )
Mutuo

( % )

pochi semplici passi

inserisci i tuoi dati
Questionario completato
Grazie per aver richiesto un appuntamento senza impegno con un nostro Consulente del Credito e Assicurativo.

Hai inserito correttamente tutti i dati necessari e a breve riceverai una e-mail con un link da convalidare per inviare i tuoi dati.
Affiliato
Dialogo Immobiliare Srls
P.le Vittorio Emanuele II, 19 43121 Parma (PR)

Il nostro staff


  • Patrizia Barbarini
    Collaboratrice

  • Giulia Maria Bormioli
    Collaboratrice

  • Alberto Bertoldi
    Collaboratore

  • Silvia Chiari
    Collaboratrice

  • Marinella Ciullo
    Coordinatrice

  • Diana De Pasquale
    Affiliata

  • Gaia Marrone
    Collaboratrice

  • Elisa Masini
    Responsabile
P.le Vittorio Emanuele II, 19 43121 Parma (PR)
Zona: Cittadella Parco-La Galleria-Corpus Domini-Mariano-Porporano-Malandriano-Coloreto-Marore
Mostra su mappa
Orari: Dal Lunedì al Venerdì: 9:00 - 13:00 / 15:00 - 19:00 Sabato: 9:30 - 12:30 / 15:00 - 17:00
Affiliato
Dialogo Immobiliare Srls
P.le Vittorio Emanuele II, 19 43121 Parma (PR)

2025 Tecnocasa Franchising S.p.A. - P. IVA 08365160152 - Via Monte Bianco 60/A 20089 Rozzano (MI). Ogni agenzia ha un proprio titolare ed è autonoma. Privacy policy | Policy utilizzo | Cookie policy