Trilocale in vendita

Parma, Borgo Padre Onorio - Centro Storico
€ 230.000
3 locali 3 locali
104 Mq 104 Mq
1 bagno 1 bagno

Trilocale in vendita

Parma, Borgo Padre Onorio - Centro Storico

Descrizione annuncio

Centro Storico – Borgo Padre Onorio

In una delle zone più comode e servite del centro storico, a pochi passi dal Collegio Maria Luigia, proponiamo in vendita un appartamento di buona metratura situato al secondo piano di un condominio dotato di ascensore.

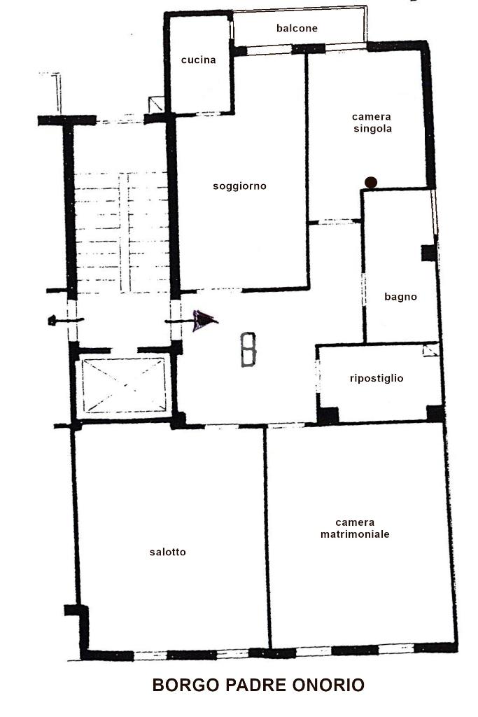
L’ingresso, ampio e funzionale, conduce ai vari ambienti della casa: un tinello con cucinotto separato e balcone, un soggiorno spazioso, una camera matrimoniale, una camera singola, un bagno finestrato e un comodo ripostiglio, che offre la possibilità di essere facilmente trasformato in un secondo servizio.

L’immobile è completo di cantina al piano seminterrato.

Attualmente locato, rappresenta una soluzione interessante sia come investimento che come futura abitazione in una posizione centrale e ben collegata.
Per garantire la privacy degli inquilini, le immagini degli interni non sono pubblicate, ma disponibili per la visione presso il nostro ufficio.

Possibilità di garage.

Per maggiori informazioni o prenotare un appuntamento contattare Alberto al 393 880 0545 oppure allo 0521 481 514

Mostra tutto

Nelle vicinanze

Trasporto pubblico Trasporto pubblico
stazione di Parma
stazione di Parma
1,6 Km
Trasporto pubblico
210 m
Viale San Michele
Viale San Michele
280 m
Ricariche auto elettriche Ricariche auto elettriche
Eneldrive Cittadella
420 m
Eneldrive Calamandrei
520 m
Eneldrive Della Steccata
870 m
IrenGo Istituto Comprensivo Parmigianino
1,0 Km
Novotel Parma Centro
1,4 Km
Scuole Scuole
Convitto Nazionale Maria Luigia
120 m
Università civiltà linguistica E Letteratura
280 m
Liceo delle Scienze Umane "A. San Vitale"
430 m
Scuola di musica
620 m
Istituto Salesiano San Benedetto
700 m
Farmacia Farmacia
Farmacia Stadio Tardini
230 m
Farmacia
360 m
Farmacia Nazionale
380 m
Farmacia XXII luglio
410 m
Equì
480 m
Ospedali Ospedali
Casa della Salute Parma Centro
1,1 Km
Casa della Salute Pintor-Molinetto
1,2 Km
Casa di Cura Città di Parma
1,4 Km
Piccole Figlie Hospital
1,5 Km
Guardia Medica
1,9 Km
Supermercati Supermercati
Conad city
310 m
Conad City
310 m
U2
610 m
Supermercati
780 m
CRAI Bossi
790 m
Negozi Negozi
Panificio Viconero
190 m
Salumeria Gianni
260 m
Maria Olga
280 m
Artemis
350 m
Il mondo senza glutine
350 m
Bar Bar
Cantina Canistracci
470 m
Lostello
500 m
Bar
540 m
Peter Pan Café
590 m
Civico Nove
590 m
Ristoranti Ristoranti
Bottiglia azzurra
290 m
Trattoria Del Ducato
350 m
Osteria dal Lino
350 m
Scacco Matto
400 m
Ristoranti
410 m
Mostra tutto

Caratteristiche

Rif.:
61130718
Piano:
2 di 6 con ascensore (Piano medio)
Balconi:
1
Camere da letto:
2
Arredamento:
Completo
Condizionamento:
Autonomo
Mostra tutto
Prezzo Prezzo
€ 230.000
Rata mutuo Rata mutuo
€ 1.060 / mese
Spese annue Spese annue
€ 1.500
Proponi il tuo prezzoProponi il tuo prezzo

Classe Energetica

F
F
F
F
F
F
F
F
F
EP globale non rinnovabile:
202.50 kW h/m² anno
EP invernale del fabbricato:
EP estiva del fabbricato:
Anno di costruzione:
1960
Riscaldamento:
Centralizzato
Tipo impianto:
A radiatori
Tipo alimentazione:
Metano

Ti interessa visionare l'immobile?

Fissa un appuntamento  Fissa un appuntamento

Richiedi informazioni

* Questi campi sono obbligatori

Calcola il tuo mutuo

Semplice e senza impegno
Anticipo

( % )
Mutuo

( % )

pochi semplici passi

inserisci i tuoi dati
Questionario completato
Grazie per aver richiesto un appuntamento senza impegno con un nostro Consulente del Credito e Assicurativo.

Hai inserito correttamente tutti i dati necessari e a breve riceverai una e-mail con un link da convalidare per inviare i tuoi dati.
Affiliato
Dialogo Immobiliare Srls
P.le Vittorio Emanuele II, 19 43121 Parma (PR)

Il nostro staff


  • Patrizia Barbarini
    Collaboratrice

  • Giulia Maria Bormioli
    Collaboratrice

  • Alberto Bertoldi
    Collaboratore

  • Silvia Chiari
    Collaboratrice

  • Marinella Ciullo
    Coordinatrice

  • Diana De Pasquale
    Affiliata

  • Gaia Marrone
    Collaboratrice

  • Elisa Masini
    Responsabile
P.le Vittorio Emanuele II, 19 43121 Parma (PR)
Zona: Cittadella Parco-La Galleria-Corpus Domini-Mariano-Porporano-Malandriano-Coloreto-Marore
Mostra su mappa
Orari: Dal Lunedì al Venerdì: 9:00 - 13:00 / 15:00 - 19:00 Sabato: 9:30 - 12:30 / 15:00 - 17:00
Affiliato
Dialogo Immobiliare Srls
P.le Vittorio Emanuele II, 19 43121 Parma (PR)

2025 Tecnocasa Franchising S.p.A. - P. IVA 08365160152 - Via Monte Bianco 60/A 20089 Rozzano (MI). Ogni agenzia ha un proprio titolare ed è autonoma. Privacy policy | Policy utilizzo | Cookie policy