Trilocale in vendita

Parma, Strada G. Garibaldi - Centro Storico
€ 365.000
3 locali 3 locali
166 Mq 166 Mq
1 bagno 1 bagno

Trilocale in vendita

Parma, Strada G. Garibaldi - Centro Storico

Descrizione annuncio

Centro Storico – Piazza della Steccata

In uno dei contesti più eleganti del centro storico, in condominio di prestigio e ottimo stato di manutenzione con facciata in mattoncini a vista e dotato di ascensore, proponiamo un appartamento di ampia metratura posto al terzo piano.

L’immobile si trova in una posizione unica, a pochi passi da Piazza Garibaldi, con affacci suggestivi su Piazza della Steccata e sulla sua splendida cupola. A pochi passi dal Teatro Regio, dal Teatro Farnese, dal complesso della Pilotta e tanti altri punti di interesse culturale (Duomo, Battistero, Palazzo del Vescovado, ecc. ).

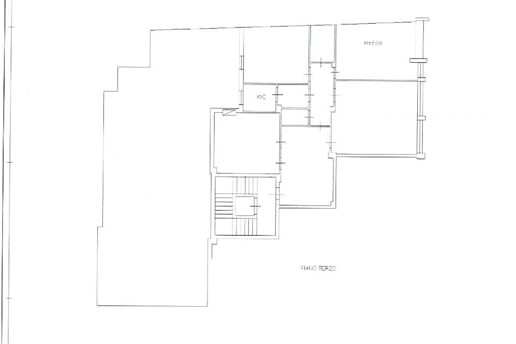
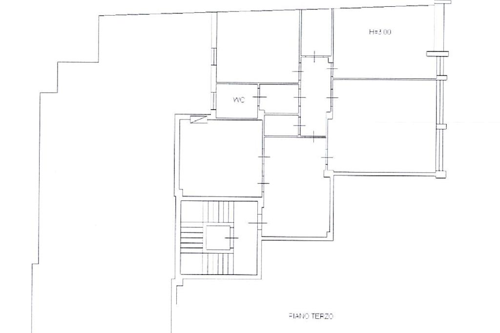
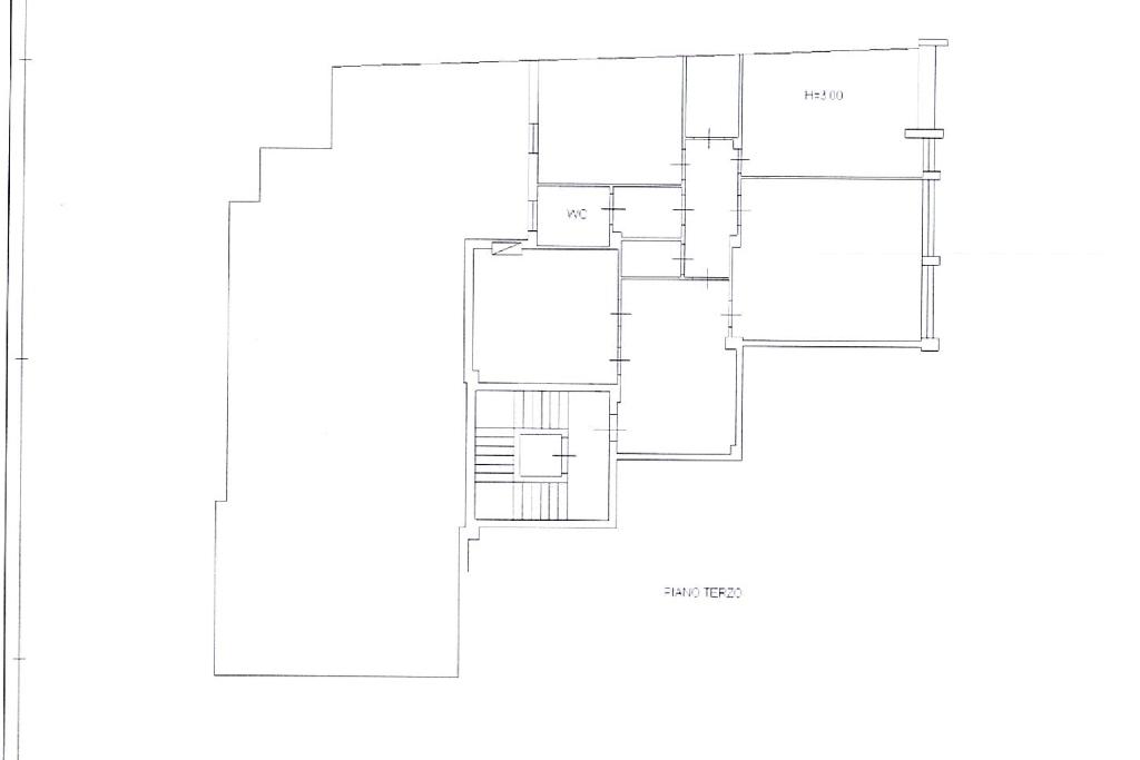
L’appartamento è al terzo piano ed èservito da ascensore.

Entrando si è accolto da un ingresso arredabile che dà accesso all'ampia cucina abitabile ed allo spazioso soggiorno. La zona notte ospita due camere da letto matrimoniali (una delle quali con loggia e vista sulla Steccata), due ripostigli ed un bagno finestrato con antibagno, dove poter ricavare una zona lavanderia. Possibilità di realizzare facilmente una secondo bagno.

Completa la proprietà una cantina.

Questa casa offre la possibilità di vivere in uno dei luoghi più rappresentativi e affascinanti della città.

Per maggiori informazioni o prenotare un appuntamento contattare Alberto al 393 880 0545 oppure allo 0521 481 514

Mostra tutto

Nelle vicinanze

Trasporto pubblico Trasporto pubblico
stazione di Parma
stazione di Parma
920 m
Strada Mazzini
Strada Mazzini
60 m
Strada Garibaldi
Strada Garibaldi
110 m
Ricariche auto elettriche Ricariche auto elettriche
Eneldrive Della Steccata
90 m
IrenGo Istituto Comprensivo Parmigianino
580 m
IrenGo Dipartimento di Economia
770 m
Novotel Parma Centro
830 m
Eneldrive Stazione FS
850 m
Scuole Scuole
Università degli Studi di Parma
170 m
Conservatorio di Musica "Arrigo Boito"
340 m
Scuole
580 m
Scuola di musica
630 m
Liceo delle Scienze Umane "A. San Vitale"
720 m
Farmacia Farmacia
Contini
120 m
Pirani
160 m
Farmacia Guareschi
160 m
Equì
190 m
Gibertini
230 m
Ospedali Ospedali
Casa della Salute Parma Centro
790 m
Casa della Salute Pintor-Molinetto
870 m
Gemini
1,1 Km
Guardia Medica
1,3 Km
Ospedale Maggiore Parma
1,5 Km
Supermercati Supermercati
Sapori & Dintorni Conad
220 m
Carrefour Express
490 m
Punto Simply
510 m
Vivo Supermercati
530 m
Conad City
530 m
Negozi Negozi
Jolie
0 m
LML
10 m
Amelie
10 m
Grossi
20 m
Target
20 m
Bar Bar
Le Malve
180 m
Dolce Vita
200 m
J Roger
220 m
Proseccheria
230 m
Tonic
240 m
Ristoranti Ristoranti
Quore Italiano
50 m
Bollicine San Bartolomeo
60 m
Da Chi Ragas
60 m
Mama Bottega & Piaceri
70 m
Le Bistro
70 m
Mostra tutto

Caratteristiche

Rif.:
61130704
Piano:
3 di 6 con ascensore (Piano alto)
Balconi:
1
Camere da letto:
2
Arredamento:
Assente
Condizionamento:
Autonomo
Mostra tutto
Prezzo Prezzo
€ 365.000
Rata mutuo Rata mutuo
€ 1.721 / mese
Spese annue Spese annue
€ 1.500
Proponi il tuo prezzoProponi il tuo prezzo

Classe Energetica

G
G
G
G
G
G
G
G
G
EP invernale del fabbricato:
EP estiva del fabbricato:
Anno di costruzione:
1950
Riscaldamento:
Centralizzato
Tipo impianto:
A radiatori
Tipo alimentazione:
Metano

Ti interessa visionare l'immobile?

Fissa un appuntamento  Fissa un appuntamento

Richiedi informazioni

Clicca su Leggi per aprire l'informativa
* Questi campi sono obbligatori

Calcola il tuo mutuo

Semplice e senza impegno
Anticipo

( % )
Mutuo

( % )

pochi semplici passi

inserisci i tuoi dati
Questionario completato
Grazie per aver richiesto un appuntamento senza impegno con un nostro Consulente del Credito e Assicurativo.

Hai inserito correttamente tutti i dati necessari e a breve riceverai una e-mail con un link da convalidare per inviare i tuoi dati.
Affiliato
Dialogo Immobiliare Srls
P.le Vittorio Emanuele II, 19 43121 Parma (PR)

Il nostro staff


  • Patrizia Barbarini
    Collaboratrice

  • Alberto Bertoldi
    Collaboratore

  • Silvia Chiari
    Collaboratrice

  • Marinella Ciullo
    Coordinatrice

  • Diana De Pasquale
    Affiliata

  • Elisa Masini
    Responsabile
P.le Vittorio Emanuele II, 19 43121 Parma (PR)
Zona: Cittadella Parco-La Galleria-Corpus Domini-Mariano-Porporano-Malandriano-Coloreto-Marore
Mostra su mappa
Orari: Dal Lunedì al Venerdì: 9:00 - 12:30 / 15:00 - 19:00 Sabato: 9:00 - 13:00
Affiliato
Dialogo Immobiliare Srls
P.le Vittorio Emanuele II, 19 43121 Parma (PR)

2026 Tecnocasa Franchising S.p.A. - P. IVA 08365160152 - Via Monte Bianco 60/A 20089 Rozzano (MI). Ogni agenzia ha un proprio titolare ed è autonoma. Privacy policy | Policy utilizzo | Cookie policy