Quadrilocale in vendita

Parma, Via Padre Felice da Mareto - Porporano
€ 480.000
4 locali 4 locali
259 Mq 259 Mq
2 bagni 2 bagni

Quadrilocale in vendita

Parma, Via Padre Felice da Mareto - Porporano

Descrizione annuncio

Porporano

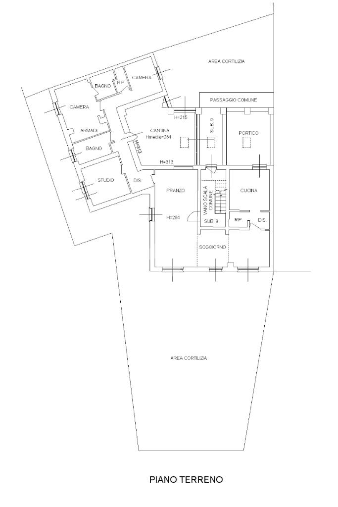
Appartamento con giardino in corte storica del ’600

In zona residenziale tranquilla e poco trafficata proponiamo in vendita appartamento che unisce il fascino della storia al comfort della ristrutturazione. L’abitazione è inserita in una corte del Seicento suddivisa in sole tre unità, elemento che garantisce riservatezza e un’atmosfera esclusiva.

Varcando la soglia si viene accolti da un soggiorno ampio e luminoso, impreziosito da un camino che dona carattere all’ambiente e da grandi aperture verso il giardino privato, un prolungamento naturale della zona giorno. La cucina abitabile, collegata al portico, è pensata per essere vissuta pienamente: durante la bella stagione lo spazio esterno diventa infatti una vera estensione della casa, ideale per pranzi e cene all’aperto.

La zona notte si sviluppa in modo armonioso: due camere matrimoniali, di cui una con cabina armadio e bagno privato, offrono spazi generosi e riservati, ed una terza camera singola. Un secondo bagno, ampio e finestrato, completa la parte notte.

A dare ulteriore respiro all’appartamento, uno studio elegante e luminoso, caratterizzato da vetrate oscurabili e affaccio sul secondo giardino privato: un ambiente che può diventare il luogo ideale per lavorare da casa o per ritagliarsi momenti di quiete. È presente anche una pratica lavanderia.

Il parquet, presente in quasi tutti gli ambienti, dona calore ed eleganza.

L’appartamento dispone di aria condizionata, termo autonomo, infissi con doppi vetri, zanzariere e impianto d’allarme volumetrico e perimetrale.

La proprietà si completa con un box doppio e un posto auto comodo all’ingresso dell’abitazione.

Questa casa coniuga il fascino senza tempo della dimora storica con la funzionalità e il comfort di una residenza moderna.

Per maggiori informazioni o prenotare un appuntamento contattare Gaia al 380 231 2538 oppure allo 0521 481 514

Mostra tutto

Nelle vicinanze

Trasporto pubblico Trasporto pubblico
Trasporto pubblico
1,5 Km
Botteghino
Botteghino
1,5 Km
Scuole Scuole
Scuola primaria Bozzani
1,7 Km
Supermercati Supermercati
D'italy
2,1 Km
Negozi Negozi
Negozi
1,2 Km
Mattia Store
1,2 Km
Gianni il fornaio
1,2 Km
Bar Bar
Altro
1,2 Km
Ristoranti Ristoranti
Il Capriccio Di Partenope
1,2 Km
ca'pina
1,3 Km
Trattoria da Romeo
1,4 Km
Pizzeria Tramonti
1,6 Km
Scarica
1,7 Km
Mostra tutto

Caratteristiche

Rif.:
61117992
Piano:
Terra con giardino di 2
Totale piani:
2
Box:
1
Posti auto:
1
Camere da letto:
3
Mostra tutto
Prezzo Prezzo
€ 480.000
Rata mutuo Rata mutuo
€ 2.262 / mese
Spese annue Spese annue
€ 100
Proponi il tuo prezzoProponi il tuo prezzo

Classe Energetica

Questo immobile è esente da classe energetica
Anno di costruzione:
1600
Riscaldamento:
Autonomo
Tipo impianto:
A radiatori
Tipo alimentazione:
Metano

Ti interessa visionare l'immobile?

Fissa un appuntamento  Fissa un appuntamento

Richiedi informazioni

Clicca su Leggi per aprire l'informativa
* Questi campi sono obbligatori

Calcola il tuo mutuo

Semplice e senza impegno
Anticipo

( % )
Mutuo

( % )

pochi semplici passi

inserisci i tuoi dati
Questionario completato
Grazie per aver richiesto un appuntamento senza impegno con un nostro Consulente del Credito e Assicurativo.

Hai inserito correttamente tutti i dati necessari e a breve riceverai una e-mail con un link da convalidare per inviare i tuoi dati.
Affiliato
Dialogo Immobiliare Srls
P.le Vittorio Emanuele II, 19 43121 Parma (PR)

Il nostro staff


  • Patrizia Barbarini
    Collaboratrice

  • Giulia Maria Bormioli
    Collaboratrice

  • Alberto Bertoldi
    Collaboratore

  • Silvia Chiari
    Collaboratrice

  • Marinella Ciullo
    Coordinatrice

  • Diana De Pasquale
    Affiliata

  • Gaia Marrone
    Collaboratrice

  • Elisa Masini
    Responsabile
P.le Vittorio Emanuele II, 19 43121 Parma (PR)
Zona: Cittadella Parco-La Galleria-Corpus Domini-Mariano-Porporano-Malandriano-Coloreto-Marore
Mostra su mappa
Orari: Dal Lunedì al Venerdì: 9:00 - 13:00 / 15:00 - 19:00 Sabato: 9:30 - 12:30 / 15:00 - 17:00
Affiliato
Dialogo Immobiliare Srls
P.le Vittorio Emanuele II, 19 43121 Parma (PR)

2026 Tecnocasa Franchising S.p.A. - P. IVA 08365160152 - Via Monte Bianco 60/A 20089 Rozzano (MI). Ogni agenzia ha un proprio titolare ed è autonoma. Privacy policy | Policy utilizzo | Cookie policy